Chiudi

Informativa.
Il sito utilizza cookie di profilazione di terze parti al fine di inviare messaggi pubblicitari in linea con le preferenze manifestate dall'utente nell'ambito della navigazione in rete. Per ulteriori informazioni o per negare il consenso all'uso dei cookie consulta l'informativa estesa. Chiudendo questo banner o cliccando sui contenuti della pagina o proseguendo la navigazione si acconsente all'uso dei cookie.

         
   
 
 

 

Domanda:
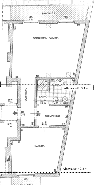
Gentile redazione, ho appena acquistato un bilocale e vorrei avere dei suggerimenti per arredarlo. Si tratta di un recupero sottotetto con travi a vista. Nel corridoio abbiamo progettato un valigiaio accessibile dal locale sala\cucina e dal disimpegno.. vorremmo sfruttare al meglio lo spazio con particolari accorgimenti dato che è piccolo ed i muri non sono ad angolo retto Grazie e saluti

Risposta:
La zona giorno di questa mansarda resta aperta perché le due ampie porte finestre che si affacciano sul lungo balcone costituiscono una buona premessa per creare le migliori condizioni di luce naturale al suo interno. La zona cottura è costituita da un lungo banco ad angolo verso la parete sghemba e sul lato penisola è fissato un tavolo a sbalzo con 3-4 posti che delimita lo spazio della cucina. A dividere la zona relax dall’angolo cottura provvede una colorata quinta in muratura alta circa 100/120 cm che lo circonda, interrotta ad un lato per creare un passaggio verso la cucina. Allineata con la parete, una serie di contenitori e di ripiani completa il soggiorno.

Prima

 

Dopo

 
 
 
 
Cerchi una soluzione di arredamento per la tua casa? Prendi spunto subito e gratuitamente dai nostri progetti!


   Pubblicità





 
   2001- © Copyright - www.progettiamoinsieme.it - ® Marchio Registrato - Tutti i diritti riservati |